 
  
 Ansichten
 
  
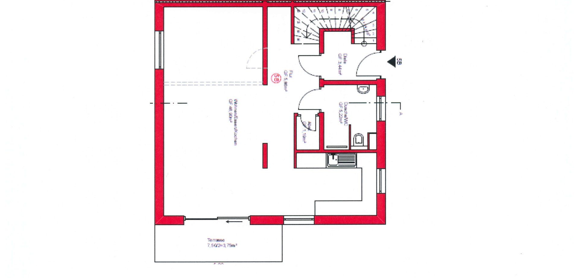
 Erdgeschoss
 
  
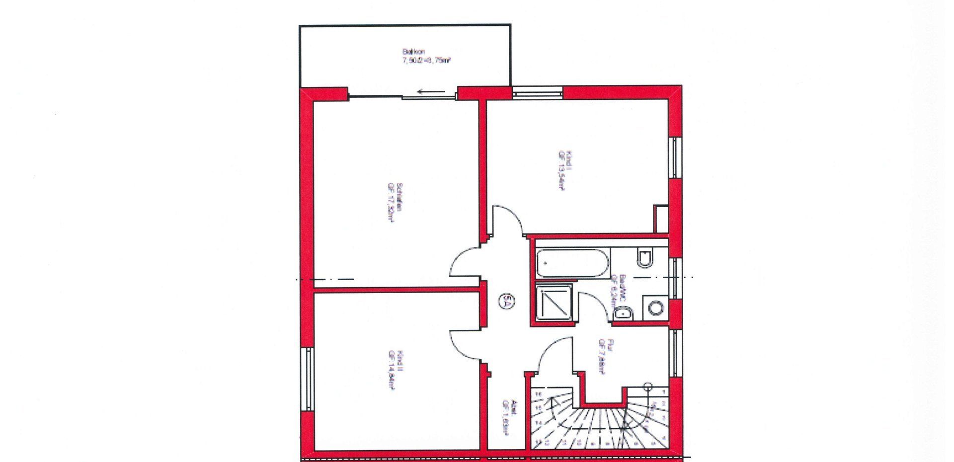
 Obergeschoss
 
  
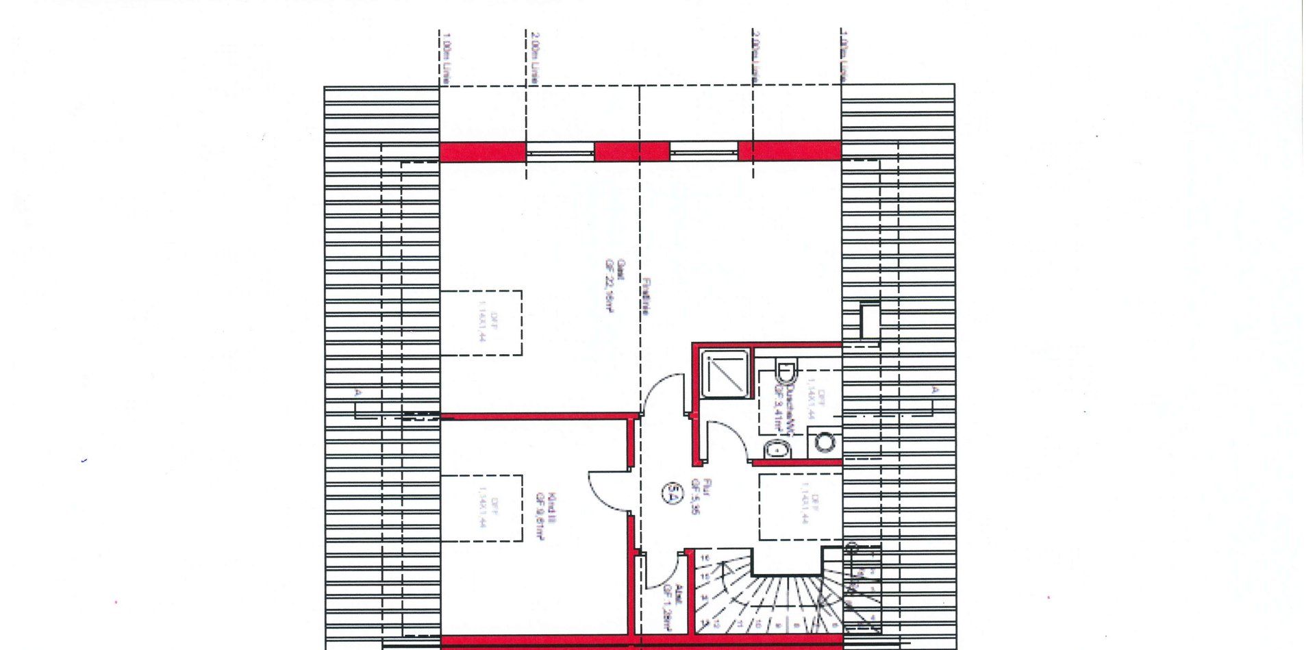
 Dachgeschoss
Objektart: Doppelhaushälfte
Ort: Forst
Baujahr: Projekt / Neubau
Bezugsfertig: 2019
Kaufpreis: 498,744,- €
Wohnfläche: 170,42 m²
Garten: 62,32 m²
Zimmer: 6,5
Schlafzimmer: 5
Bad/WC: 3
Gesamtwohnfläche: 170,42 m²
Wohnfläche EG: 64,37 m²
Eingang: 3,44 m²
Wohnen/Essen/Kochen: 46,90 m²
Flur: 5,86 m²
Terrasse: 3,75 m²
Abstellraum: 1,19 m²
Dusche/WC: 5,22 m²
Wohnfläche OG: 63,24 m²
Flur: 7,88 m²
Bad: 6,24 m²
Kind I: 13,54 m²
Kind II: 14,84 m²
Schlafen: 17,32 m²
Abstellraum: 1,63 m²
Balkon: 3,75 m²
Wohnfläche DG: 42,81 m²
Kind I: 13,54 m²
Kind II: 14,84 m²
Flur: 7,88 m²
Dusche/WC: 6,24 m²
Abstellraum: 1,63 m²
Zentralheizung / Fußbodenheizung
Tageslichtbadezimmer
Balkon
Stellplatz
Ladestation für Elektrofahrzeuge (optionall)
Garten: 62,32 m²
Diese Immobilie befindet sich in eine verkehrsberuhigte Lage in Forst.
Forst ist eine attraktive und gefragte Gemeinde im Landkreis Karlsruhe. Mit einem breit gefächerten kulturellen und sportlichen Angebot.
Die verkehrsgünstige Lage an der Autobahn A 5 ermöglicht ein schnelles Erreichen der Städten Karlsruhe und Stuttgart, sowie des Großraumes Heidelberg / Mannheim.
Die Lage sowie das örtliche Freizeit- und Dienstleistungangebot und die damit verbundene Wohnqualität haben zu einem starken Bevölkerungszuwachs geführt.
Alle Angaben wurden nach besten Wissen erstellt,
und beruhen auf den Angaben des Auftraggebers. Für die Richtigkeit oder Vollständigkeit übernehmen wir keine Gewähr.
 
  
 Ansichten
 
  
 Erdgeschoss
 
  
 Obergeschoss
 
  
 Dachgeschoss
Objektart: Doppelhaushälfte
Ort: Forst
Baujahr: Projekt / Neubau
Bezugsfertig: 2019
Kaufpreis: 512,240,- €
Wohnfläche: 170,42 m²
Garten: 180,24 m²
Zimmer: 6,5
Schlafzimmer: 5
Bad/WC: 3
Gesamtwohnfläche: 170,42 m²
Wohnfläche EG: 64,37 m²
Eingang: 3,44 m²
Wohnen/Essen/Kochen: 46,90 m²
Flur: 5,86 m²
Terrasse: 3,75 m²
Abstellraum: 1,19 m²
Dusche/WC: 5,22 m²
Wohnfläche OG: 63,24 m²
Flur: 7,88 m²
Bad: 6,24 m²
Kind I: 13,54 m²
Kind II: 14,84 m²
Schlafen: 17,32 m²
Abstellraum: 1,63 m²
Balkon: 3,75 m²
Wohnfläche DG: 42,81 m²
Kind I: 13,54 m²
Kind II: 14,84 m²
Flur: 7,88 m²
Dusche/WC: 6,24 m²
Abstellraum: 1,63 m²
Zentralheizung / Fußbodenheizung
Tageslichtbadezimmer
Balkon /terrasse
Stellplatz
Ladestation für Elektrofahrzeuge (optionall)
Garten: 180,24 m²
Diese Immobilie befindet sich in eine verkehrsberuhigte Lage in Forst.
Forst ist eine attraktive und gefragte Gemeinde im Landkreis Karlsruhe. Mit einem breit gefächerten kulturellen und sportlichen Angebot.
Die verkehrsgünstige Lage an der Autobahn A 5 ermöglicht ein schnelles Erreichen der Städten Karlsruhe und Stuttgart, sowie des Großraumes Heidelberg / Mannheim.
Die Lage sowie das örtliche Freizeit- und Dienstleistungangebot und die damit verbundene Wohnqualität haben zu einem starken Bevölkerungszuwachs geführt.
Alle Angaben wurden nach besten Wissen erstellt,
und beruhen auf den Angaben des Auftraggebers. Für die Richtigkeit oder Vollständigkeit übernehmen wir keine Gewähr.